168ÌåÓý¹ÙÍø

Ê×Ò³
¹ØÓÚ168ÌåÓý¹ÙÍø
Éú²úÁ÷³Ì
²úƷչʾ
ÐÂÎÅÖÐÐÄ
È˲ÅÕÐÆ¸
ÁªÏµ168ÌåÓý¹ÙÍø
18118387157
|
245931791@qq.com
ËÑË÷
¹¤ÒÕ¾«Õ¿
×·Çó׿ԽÖÁÕé

רעÑо¿¿ª·¢Ìṩרҵ¸ÉÔïÉ豸

¸ÉÔïϵÁÐ
ÖÆÁ£ÏµÁÐ
»ìÏýϵÁÐ
ÆÆ»µÏµÁÐ
¸¨ÖúϵÁÐ
¹Ì·ÏרÓÃ

FL ϵÁл¶Ï²ÖÆÁ£¸ÉÔï»ú

Ô­Àí

ÎïÁÏ·ÛÄ©Á£×Ó,ÔÚÔ­ÁÏÈÝÆ÷(Á÷»¯´²)Öгʻ·ÐÎÁ÷»¯×´Ì¬£¬Êܵ½¾­¹ý¾»»¯ºóµÄ¼ÓÈÈ¿ÕÆøÔ¤ÈȺͻìÏý£¬½«Õ³ºÏ¼ÁÈÜÒºÎí»¯ÅçÈ룬ʹÈô¸ÉÁ£×Ó¾Û¼¯³Éº¬ÓÐÕ³ºÏ¼ÁµÄÍÅÁ£,ÓÉÓÚÈÈ¿ÕÆø¶ÔÎïÁϵIJ»¾ø¸ÉÔʹÍÅÁ£ÖÐË®·ÖÕô·¢£¬Õ³ºÏ¼ÁÄý¹Ì£¬´ËÀú³Ì²»¾øÖظ´½øÐУ¬ÐγÉÀíÏëµÄ¡¢¾ùÔȵĶà΢¿×¿ÅÁ£¡£

ÌØµã

ͨ¹ý·ÛÌåÔìÁ££¬¸ÄÉÆÁ÷¶¯ÐÔ£¬¼õÉÙ·Û³¾·ÉÑï:

ͨ¹ý·ÛÌåÔìÁ£¸ÄÉÆÆäÈܽâÐÔÄÜ;

»ìÏý¡¢ÖÆÁ£¡¢¸ÉÔïÔÚÒ»»úÄÚÍê³ÉÒ»²½·¨ÖÆÁ£;

½ÓÄÉ¿¹¾²µçÂ˲¼£¬É豸²Ù×÷Äþ¾²;

ÉèÖÃѹÁ¦Ð¹·Å¿×£¬Ò»µ©±¬·¢±¬Õ¨£¬É豸ÈËÔ±²»ÊÜÉ˺¦;

É豸ÎÞËÀ½Ç£¬×°Ð¶ÁÏÇá±ã¿ìËÙ£¬³åÏ´½à¾»£¬Âú×ãGMP¹æ·¶¡£

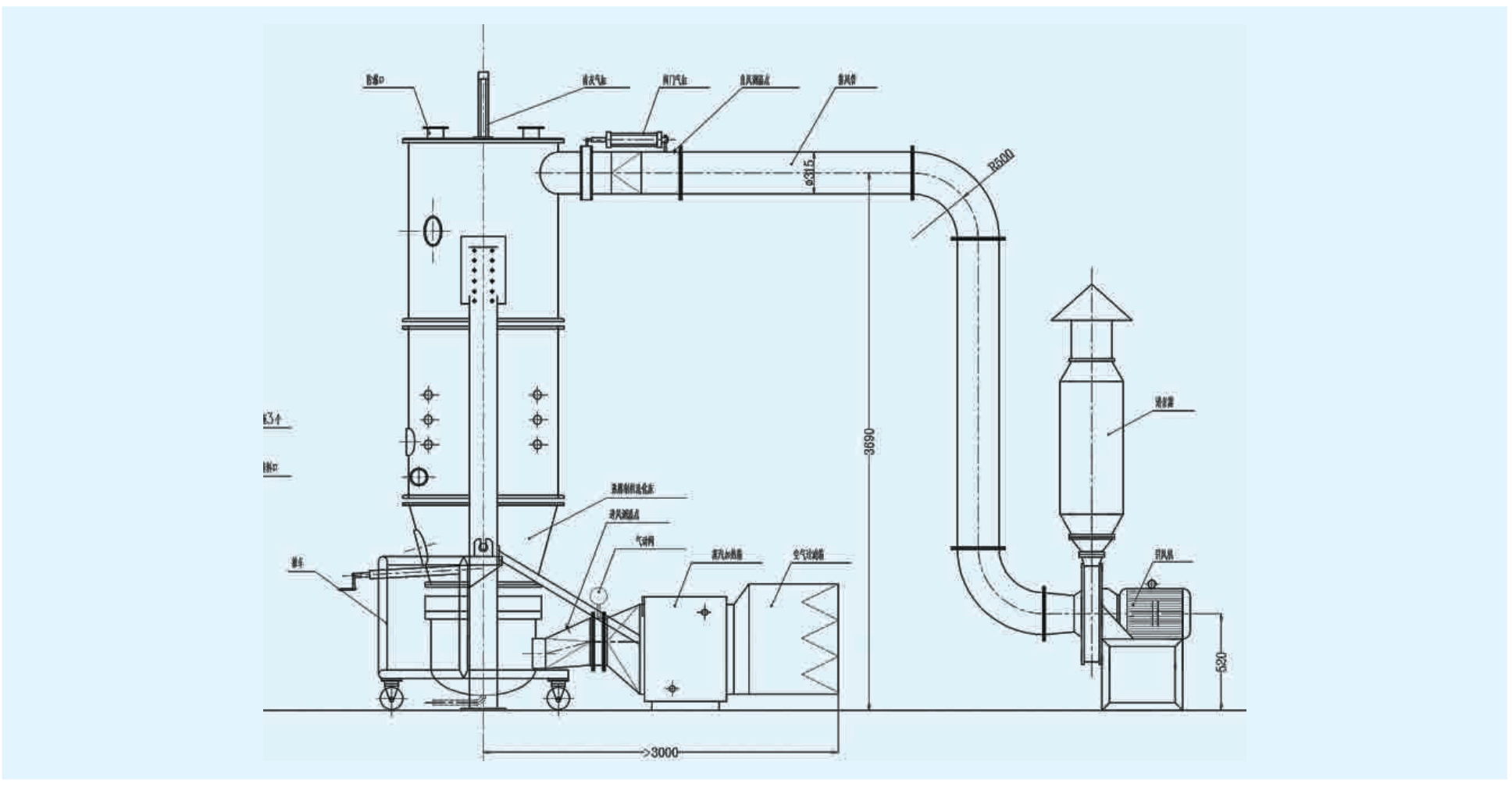
¹¤ÒÕÁ÷³Ì

FL ϵÁл¶Ï²ÖÆÁ£¸ÉÔï»ú¹¤ÒÕ

¼¼Êõ²ÎÊý

FL ϵÁл¶Ï²ÖÆÁ£¸ÉÔï»ú²ÎÊý

Ó¦ÓÃ

ÖÆÒ©¹¤ÒµÖеÄÔìÁ££ºÆ¬¼Á¿ÅÁ£¡¢³å¼Á¿ÅÁ£¡¢½ºÄÒ¼Á¿ÅÁ£¡£

ʳƷ¹¤ÒµµÄÔìÁ££º¿É¿É¡¢¿§·È¡¢ÄÌ·Û¡¢¿ÅÁ£¹ûÖ­¡¢µ÷ζƷµÈ¡£

ÆäËûÐÐÒµµÄÔìÁ££ºÅ©Ò©¡¢ËÇÁÏ¡¢»¯·Ê¡¢ÑÕÁÏ¡¢È¾ÁÏ»¯¹¤µÈ¡£

·Û×´»ò¿ÅÁ£×´ÊªÎïÁϵĸÉÔï¡£

°üÒ£º¿ÅÁ£¡¢Íè¼Á±£»¤²ã¡¢±¸É«¡¢»ºÊÍ¡¢±¡Ä¤¡¢³¦Èܰüҵȡ£

ÍøÕ¾µØÍ¼